
name : o awaji
place : Awaji, Hyogo
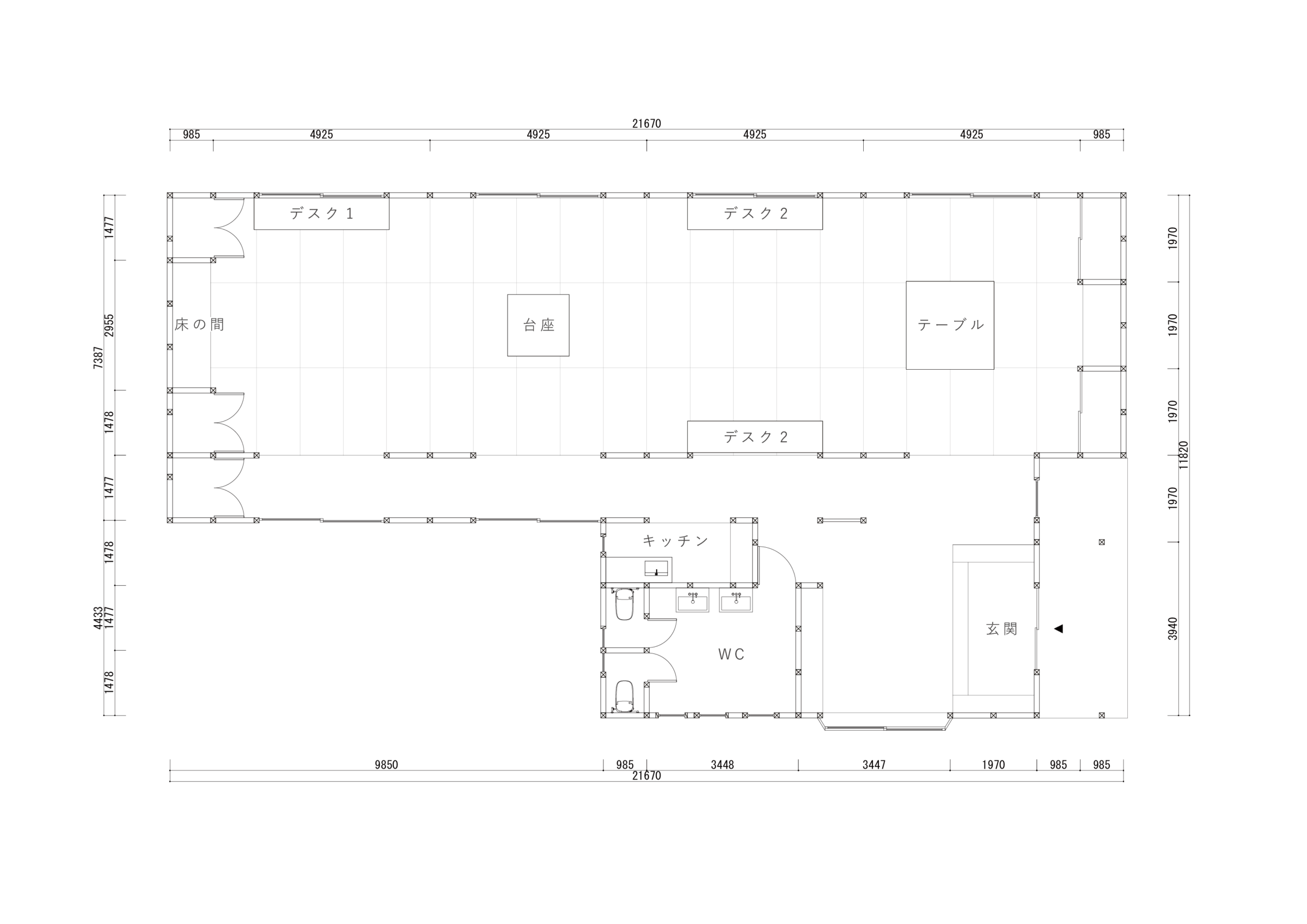
入母屋造りの伝統的な様式である建築をオフィス兼ギャラリーに改装する計画。60帖の大広間や、黒檀の柱を用いた床の間など、既存建築の躯体がもつ美しい骨格の一部となるような什器と設えを計画した。各広間に幾何学造形から発想した什器を設計し、既存建築と調和するように計画した。左右にある3つのテーブルは既存建築の柱割りの985mmグリッドに合わせて計画することで元からそこに在るような調和を目指した。それに対して、中央の3つの什器は寸法を既存建築のグリッドとは敢えて合わせず、異質なものとして扱うことで空間に象徴的に浮かび上がることを意図した。20mの奥行がある大広間に対して、空間の背景として調和する部分と、象徴的なオブジェとなる部分を計画することで、一方向的な奥行のある建築のなかに中心的な磁場を形成した。視覚的には奥行の拡がりを保ちながら、空間体験的には訪れる人々が什器を囲むという中心性を創出した。
press release PDF












